Устройство клапанов разных типов
Выбор и установка обратного клапана на воду зависит от его конструктивных особенностей. Клапан для воды может принадлежать к таким типам, как:
Клапан обратный пружинный муфтовый
Корпус устройства представляет собой два цилиндра, объединенные резьбовым соединением. Золотник состоит из пластмассового толкателя, пары тарелок и упругой прокладки. Нормальное положение затвора — закрытое, при подаче напора жидкости и достижения им заданного значения он отжимает пружину, и клапан на воду открывается. При падении напора пружина возвращает золотник на место, закрывая затвор.
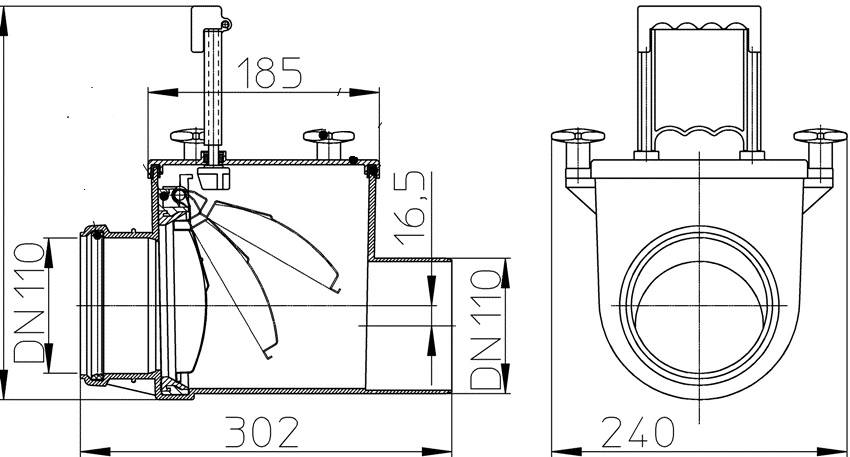
Поворотный лепестковый
Золотник в этом варианте выполнен не осевым, а поворотным, причем ось размещена выше просвета затвора. При подаче давления жидкости оно отжимает заслонку и клапан открывается. При падении напора заслонка под действием силы тяжести или возвратной пружины опускается и закрывает просвет
При монтаже такого устройства важно соблюдать маркировку «верх» и максимально возможный уклон, определенный в документации. В устройствах больших размеров при возврате заслонки происходит мощный удар ее о седловину, что может привести к гидроудару и даже к выходу устройства из строя
Чтобы предотвратить это, конструкцию приходится усложнять и добавлять демпфирующие удар элементы. Конструкция позволяет создавать затворы больших диаметров, мало чувствительные к наличию в жидкости взвесей и других включений.
Шаровая модель
Способ действия и устройство весьма схожи с тарельчатым пружинным клапаном. Роль запирающей детали играет шар, прижимаемый пружиной к седлу. Применяется в основном для труб малого диаметра, в бытовых сантехнических системах. Такой обратный проходной клапан при равном сечении обладает большими внешними размерами, чем тарельчатый.
Изделие подъемного типа
Шток золотника в этом случае размещается вертикально, под давлением воды золотник поднимается, открывая затвор. При снижении напора шток опускается, и клапан закрывается. На установку таких устройств накладывается ограничение — ее можно проектировать только на горизонтально расположенных трубах
Важное достоинство таких конструкций — возможность ремонта золотника без снятия всего корпуса. Минусом являются повышенные требования к чистоте жидкости
Виды клапанов и принцип функционирования
Существует несколько разновидностей канализационных обратных клапанов на 110 и 50 миллиметров, которые различаются сферой применения. Соответственно, все виды механизмов обладают разной конструкцией и принципом функционирования одного элемента.
Когда сточные жидкости подходят, заслонка автоматически поднимается, после чего она снова возвращается в исходное положение. Именно по механизму функционирования заслонки классифицируются модели канализационных обратных клапанов.
Поворотные
Данная разновидность канализационных клапанов обладает подпружиненной мембраной (она называется тарелкой из-за круглой формы). В случае, когда сточные воды перемещаются в верном направлении, тарелка поворачивается и уходит вверх, не препятствуя движению жидкостей.
Однако при обратном направлении стоков подпружиненная мембрана плотно прижимается к внешнему ободку, в результате чего рабочая площадь трубопровода оказывается перекрытой.
Некоторые модели дополнительно имеют встроенную дополнительную заслонку, которая управляется вручную. Подобный запорный механизм можно регулировать при помощи специальной кнопки, находящейся на корпусе устройства.
Таким образом, трубопровод имеет сначала расширяющийся, а затем сужающийся участок, что является возможным местом образования засора канализационной системы. Решением данной проблемы становится размещение вверху корпуса механизма крышки. Сняв ее, возможно легко и быстро убрать появившийся засор.
Подъемный клапан на канализацию
Название данного вида прибора основано на механизме функционирования заслонки. Когда сточные воды перемещаются в правильном направлении, заслонка располагается вверху.
Принцип работы: жидкость оказывает давление на мембрану, которая перекрывает движение стоков, внутренняя пружина сжимается, вследствие чего заслонка поднимается. Если сточные воды не перемещаются, то пружина находится в обычном состоянии, а путь стокам преграждается.
Благодаря нелинейной корпусной форме при движении жидкости в обратную сторону открытие клапана невозможно, что обеспечивает полную безопасность от затопления.
Подобный тип обратного клапана для канализации 110 или 50 мм обладает большей надежностью функционирования, чем поворотная (лепестковая) модель, однако существует и недостаток.
Особенности формы являются причиной необходимости регулярной очистки системы, т.к. она периодически засоряется. Для выполнения этой процедуры потребуется открутить болты (4 шт.), затем тщательно почистить или, если возникла такая необходимость, заменить рабочий механизм. Если владелец имеет возможность производить регулярную чистку, то лучше приобретать именно подобный вариант обратного клапана.
Шаровый клапан
В этом типе устройств запирающим элементом является небольшой шарик. Верхняя часть корпуса сконструирована таким образом, что во время протекания сточных вод шарик попадает в отдельное отверстие и позволяет потоку двигаться.
Когда жидкость отсутствует, рабочая область трубы блокируется, в результате чего поток не способен проходить в неправильном направлении. Однако подобные модели имеют недостаток – в отличие от поворотного и подъемного механизма в данной конструкции заслонка-шарик прилегает к ободку устройства не полностью.
В результате нарушения герметичности может происходить небольшое протекание стоковых вод. Конечно же, вероятность серьезного затопления, как если бы канализационный обратный клапан полностью отсутствовал, минимальна.
Межфланцевый
Основное преимущество подобной разновидности запорного механизма – небольшие габариты, что делает возможной установку даже при отсутствии свободного места за сантехническими приборами. Внешне устройство выглядит цилиндром миниатюрных размеров со специальной поворотной заслонкой.
Данный элемент может состоять из 2 компонентов, которые закрепляются у центрального стержня, либо по внешнему виду напоминать маленькую тарелку, которая фиксируется у корпуса при помощи пружинного механизма.
Подобный вариант желательно устанавливать только в том случае, если прочие разновидности установить не удастся. Даже с учетом небольших размеров желательно все же отдать предпочтение другим типам прибора. Межфланцевый обратный клапан 50-ти мм на канализацию монтируется достаточно редко, т.к. относится к категории оборудования для водоснабжения. Для канализационных систем эффективность его работы довольно низкая.
Еще одним недостатком подобной конструкции является отсутствие возможности быстро почистить устройство. Из-за особенностей формы потребуется полностью разобрать соединение, чтобы осуществить чистку клапана.
Как подключить слив через обратный клапан?
Вы все еще сомневаетесь, нужен ли вам антисифон? По мнению профессионалов, установка требуется в двух случаях:
1. Для сливной трубы, которая находится слишком низко к полу.
2. Для стиралки, подключаемой к сифону под раковиной.
Как подсоединить клапан самостоятельно?
Чтобы решить проблему со сливом, одну сторону соединяете с трубой для канализации, а ко второму отверстию прикручиваете дренажный шланг СМ. Обрабатываете при необходимости места соединения герметиком — готово!
Как видите, несмотря на кажущуюся простоту, устройство выполняет полезную функцию, главное, подобрать подходящую модель.
Возьмите советы из видео себе на заметку:
Что представляет собой обратный клапан на канализацию 110 мм и другого размера
Обратный клапан – это разновидность запорной арматуры. Он устанавливается в просвет на трубопровод для блокировки обратного течения жидкости в случае засорения системы. Устройство монтируется в подвальном помещении на горизонтальном участке общего канализационного коллектора в месте стыковки труб. Его также можно установить в месте поворота трубопровода на 90º.
Для достижения максимальной безопасности обратный клапан на канализацию 50 мм также может быть смонтирован на отводах к сантехническим приборам на первом и втором этажах многоквартирного дома. Такая усиленная мера оправдана тем, что фекальные воды при обратном истечении способны подняться лишь выше первого этажа. Далее скопившаяся масса способна самостоятельно продавить образованную в трубе пробку.

Обратный клапан можно установить в месте поворота трубопровода на 90º
Для частного сектора обратный клапан монтируется перед выпуском в канализационный колодец (для каждого дома отдельно – на внутренней стороне фундамента). Такое устройство также предназначено и для автономной системы, где сточные воды накапливаются в сливной яме или в септике. В этом случае следует побеспокоиться, как залить крышку на канализацию своими руками.
Обратный клапан характеризуется простотой конструкции, надежностью, эффективностью, долговечностью, несложным монтажом и удобным техобслуживанием.
Недостатки обратного клапана. Виды обратных клапанов
По внутреннему устройству и назначению обратные клапаны для воды подразделяются на следующие виды:
Клапан межфланцевый, пружинный дисковый и двухстворчатый.
Самая компактная конструкция среди всех видов.
У пружинного дискового клапана затвором служит диск (пластина) с прижимным элементом – пружиной.
В рабочем состоянии диск под давлением воды отжимается, обеспечивая свободный проток.
При понижении давления пружина прижимает диск к седлу, перекрывая проточное отверстие.
Диапазон размеров обратного клапана 15 мм – 200 мм.
В сложных гидросистемах при остановке насоса может произойти гидроудар, который способен нанести повреждения системе.
В таких системах применяются двухстворчатые клапаны: в больших и сложных системах – с амортизаторами для смягчения гидроударов.
В них запорный диск под действием потока воды складывается пополам. Обратный поток возвращает диск в исходное состояние, прижимая его к седлу. Диапазон размеров 50 мм – 700 мм, еще больше, чем у пружинных дисковых клапанов.
Основными преимуществами межфланцевых обратных клапанов являются меньшие размеры и малый вес. В их конструкции отсутствуют фланцы для крепления к трубопроводу.
За счет этого вес снижается в 5 раз, а общая длина в 6-8 раз по сравнению со стандартными обратными клапанами данного проходного диаметра.
Достоинства: простота монтажа, эксплуатации, возможность устанавливать кроме горизонтальных участков трубопровода, также на наклонные и вертикальные.
Недостаток – необходим полный демонтаж при ремонте клапана.
Клапан обратный поворотный или лепестковый
В данной конструкции запорным элементом является золотник – «захлопка».
Ось поворота «захлопки» находится выше проходного отверстия. Под действием напора «захлопка» откидывается и не препятствует прохождению воды.
При понижении давления ниже допустимого золотник падает и захлопывает проходной канал.
В обратных клапанах большого диаметра происходит сильный удар золотника о седло, что приводит к быстрому выходу конструкции из строя.
При дальнейшей эксплуатации это провоцирует возникновение гидравлического удара при срабатывании обратного клапана.
Поэтому поворотные обратные клапаны разбиваются на две группы:
- Простые – клапаны с диаметром до 400 мм. Их применяют в системах, где ударные явления не могут серьезно повлиять на работу гидросистемы и самого клапана.
- Безударные – клапаны с устройствами, обеспечивающими плавную и мягкую посадку золотника на седло.
Преимуществом поворотных клапанов является способность обеспечивать работу в системах больших размеров и невысокая чувствительность к загрязнению среды.
Подобный клапан установлен в аэродинамической трубе NASA, размер которой 7 метров в диаметре.
Недостаток – необходимость применения демпфера в клапанах большого диаметра.
Обратный шаровый
Принцип работы обратного шарового клапана аналогичен принципу действия межфланцевого пружинного дискового клапана.
Запорным элементом в нем является шар с пружиной, прижимающей его к седлу. Шаровые обратные клапаны применяют в системах с трубами небольшого диаметра, чаще всего в сантехнике.
Клапан обратный шаровый проигрывает пружинному дисковому клапану в габаритах.
Обратный подъемный
В обратном подъемном клапане запорным элементом является подъемный золотник.
Под действием давления воды золотник поднимается, пропуская поток.
При падении давления золотник опускается на седло, препятствуя обратному ходу потока.
Монтаж
Установка клапана, независимо от типа несложная, но важно правильно определить место его монтажа. Существует 2 стандартные схемы:
- Обратный клапан для канализации 110 мм смонтировать на участке примыкания общего стояка к трубам квартиры.
- Монтаж отдельного затвора соответствующего размера на каждый отдельный прибор – такой вариант более надежный, но и обойдется дороже.
Обратите внимание! Если прислушаться к советам профессионалов, то они рекомендуют монтировать один общий затвор только в частных домах, для квартиры этой защиты мало, особенно если она расположена на первом этаже. Не стоит устанавливать вертикальный клапан под крышку ревизии в разрыв стояка
Это же относится к разного рода перегораживающим сеткам и т.п. Заслонки рассчитаны на работу в горизонтальной системе, перевернув их можно получить проблемы с отводом стоков. В такой позиции мембрана не дает беспрепятственно уходить стокам. А это может привести к масштабной аварии
Не стоит устанавливать вертикальный клапан под крышку ревизии в разрыв стояка. Это же относится к разного рода перегораживающим сеткам и т.п. Заслонки рассчитаны на работу в горизонтальной системе, перевернув их можно получить проблемы с отводом стоков. В такой позиции мембрана не дает беспрепятственно уходить стокам. А это может привести к масштабной аварии.
Правила установки
Установка обратного клапана на канализацию проводится по таким правилам:
- Перед монтажом необходимо проверить работоспособность клапана. Досконально это сделать не выйдет, но как минимум визуально оценить отсутствие дефектов нужно.
- При выборе места монтажа нужно учитывать, что доступ к элементу системы должен быть всегда простым. Кроме того нужно помнить, что при аварии времени переставлять мебель нет, так еще и чистить его нужно время от времени.
- Диаметр клапана должен точно совпадать с диаметром трубы. То есть обратный клапан для канализации 50 мм должен монтироваться на трубу 50 мм, так удастся достичь максимальной эффективности работы. Если не соблюсти это правило, то придется использовать переходники, что ведет к ослаблению надежности коммуникаций.
- Без использования переходников обойтись не удастся, если материал труб отличается от материала затвора. Это усложняет задачу, поэтому лучше поискать подходящий.
- На каждом клапане есть стрелка, которая указывает направление выходного потока, он должен врезаться в систему таким образом, чтобы стрелка «смотрела» в сторону канализационного коллектора.
- Соединение стандартным способом для тех труб, которые смонтированы.
- Обязательно использование уплотнителей и прочих герметизирующих элементов, например ФУМ-ленты.
- Сам процесс врезки несложный: определить место, где будет монтироваться канализационный обратный клапан, вырезать участок трубы и вставить вместо него клапан. Обязательно герметизировать и проверить на предмет течи.
Виды канализационных клапанов
На рынке инженерной сантехники представлено большое разнообразие обратных клапанов для канализационной системы. Они различаются по месту монтажа, способу установки, а также по материалу производства.
По месту применения
Согласно месту расположения конструкции, обратные клапаны используются на уличной канализационной системе и на внутренней, размещенной в квартире. Например, для наружной канализации используют диаметр 110, 160 и 200 мм. Это большие широкие трубы, на которые устанавливают изделие с ручным фиксатором и предохранителем. Модель устанавливается в горизонтальном положении на улице или в подвальных помещениях. Внутри изделие оснащено нержавеющей заслонкой.
Клапаны для установки внутри квартиры можно использовать двумя способами:
- установить один прибор на трубу канализации;
- установить несколько элементов на каждый сантехнический прибор.
Устройство изделия с размерами на чертеже
Второй вариант обойдется дороже, а первый требует значительных затрат площади для вписывания устройства в канализационную трубу. Диаметр 50 мм используют для индивидуального монтажа на приборы, а диаметр трубы 110 мм – при установке на общую трубу слива.
По способу монтажа
Согласно способу установки, обратные канализационные клапаны можно поделить на:
- фланцевые;
- межфланцевые;
- муфтовые.
Первый вид устанавливается на трубопровод при помощи фланцевого соединения. Устройство комплектуется ответными фланцами и специальным крепежом. Конструкция может быть изготовлена с подъемным, дисковым, шаровым или поворотным затвором. С трех сторон есть пластины, на которых должны располагаться болты, образуя фланцевое соединение. Зачастую такие модели изготавливают из чугуна.
Межфланцевые клапаны отличаются небольшими габаритами и невысокой стоимостью. При монтаже такой вид затвора закрепляется между трубопроводными фланцами. Этот тип легко демонтируется, замена деталей производится быстро и без проблем. Внутренний механизм таких моделей представлен дисковыми и двухстворчатыми заслонами.
Еще один вид обратного канализационного клапана – муфтовый или резьбовой
Из названия понятно, что крепление представлено резьбой. Часто производство используется нержавеющую сталь, чугун и латунь. Имеется два основных вида конструкции, в народе их называют «качелька» и «бочонок».
По материалу изготовления
Для производства обратных клапанов на канализационный стояк используют те же материалы, что и для изготовления труб. Конструкции бывают:
- Чугунные – используются на магистральных канализационных системах, чаще устанавливаются на трубах большого диаметра. Модели способны выдержать сильное давление без деформации.
- Пластиковые – самый популярный тип для монтажа на внутриквартирных системах. Доступные и простые в монтаже устройства.
- Стальные – используются на уличных системах, устойчивы к коррозии, не подвергаются воздействию агрессивной среды.
- Бронзовые – обладают длительным сроком службы, а также хорошей сопротивляемостью внешним факторам. Имеют высокую стоимость по сравнению с другими вариантами.
Запорная арматура будет работать по принципу воздействия на нее напора воды в трубе
Все представленные варианты отличаются хорошим функционированием, но использовать каждый вид необходимо по назначению.
Устройство клапана для канализации
В горизонтальном обратном клапане, в механизме блокировки жидкости, учувствует маятник, который фиксируется и закрывает собой весь диаметр трубы, при обратном сопротивлении. Когда же в сторону канализации, маятник легко открывает трубу и пропускает все смываемое из унитаза.
В вертикальном клапане, блокирующим механизмом выступает поплавок, который работает аналогичным образом, как и маятник. При поднятии по стояку любой жидкости, поплавок поднимается вместе с ней и блокирует выход нечистот наружу, через унитаз.
У некоторых моделей обратных клапанов существует принудительный рычаг блокировки, а также переключатель направленности маятника. Но, как правило, такие переключатели не нужны для повседневной службы клапана.
Процесс монтажа обратного клапана
Существует определенный порядок, как установить обратный клапан. Простым случаем является монтаж клапана-манжеты на сантехнику.
Он состоит из таких этапов:
- На выпуск унитаза надевают манжету.
- Выпуск с манжетой помещают в раструб канализационной трубы.
- Унитаз фиксируют штатными крепежными элементами.

При этом нужно учитывать несколько нюансов:
- унитаз нужно подключать к трубе, имеющей прямой участок после раструба, а заслонка не должна упираться в стенку отвода;
- не следует при сборке соединений применять герметик и монтировать прибор на мастику или цемент, поскольку клапан нужно будет чистить.

Если требуется смонтировать клапан в разрыв ранее собранного канализационного участка, необходимо приобрести фасонный элемент, который называется компенсирующим патрубком – короткую трубку, имеющую удлиненный раструб.
Последовательность монтажа:
- Трубу разрезают выше раструба в двух местах.
- Вырезанный участок удаляют.
- Обрезок трубы вынимают из раструба.
- Компенсатор надевают до упора на трубу выше раструба.
- В раструб вставляют обратный клапан.
- Компенсатор осаживают в раструб клапана.

Нюансы имеются и в этом случае:
- На отрезанных участках трубы нужно с внутренней стороны зачистить заусенцы и снять наружную фаску. Если этого не сделать, при работе канализации, неровности начнут задерживать мусор. В свою очередь, фаска поможет легко стыковать раструбное соединение.
- Раструб клапана после сборки следует зафиксировать отдельным хомутом, чтобы не допустить самопроизвольную расстыковку в случае подпора канализации, поскольку компенсатор может сместиться вверх по трубе.
Чтобы смонтировать затвор при отсутствии раструба, кроме компенсатора понадобится канализационная муфта. Ее помещают на отрезанную по размеру трубу, ниже места расположения клапана. Остальные действия аналогичны тем, о которых рассказано выше.
Шаровой
Канализационное затопление особенно вероятно в высотных домах, где на одной вертикальной трубе располагаются сразу несколько квартир. Может оказаться достаточным для засорения стояка даже одного полиэтиленового пакета, и тогда да, не находящая себе пути, будет устремляться обратно, выплескиваясь из всех сливных отверстий. Особенно вероятна такая ситуация в старых домах, где трубы покрыты с внутренней стороны толстыми корками отложений.
Особенно высок риск обратного прорыва отработанной воды в квартирах на первом этаже. Часто на ночь в таких квартирах приходится затыкать стоки тряпками, пробками и другими импровизированными затычками. Но если на первых этажах установлены клапанные затворы, вода может прорываться и на втором этаже. До третьих этажей напора обычно уже не хватает, а если он достаточно силен, то просто разрушит затор и вода уйдет в трубу.
Итак, ставить обратный клапан стоит, если:
- Ваша квартира расположена на первом или втором этаже.
- Вы живете в индивидуальном жилище: коттедже, даче, частном домике.
- Дом построен давно и в нем не проводилось капитального ремонта канализационной системы с заменой стояков.
- По словам соседей, в доме нередки случаи засорений канализации.
Небольшие затраты на покупку и установку защитных устройств в этом случае окупятся сторицей, позволив не опасаться внезапных расходом и нервотрепки.
Если в доме установлен общий клапан на стояк, он может снизить риск затопления. Но в проблемных квартирах лучше поставить отдельные клапаны на каждый сток для полной уверенности.
Устройство
В 2018 году существует множество вариантов такого агрегата. Они отличаются материалами, размерами и формой, способом запирания и многими другими параметрами. Но назначение у всех видов клапанов одно – отсечь в трубе канализационную воду, резко устремившуюся в обратном направлении.

Практически у любой конструкции есть следующие элементы:
- Патрубки, через которые сливаемая вода входит в клапан и покидает его.
- Ручка, которая перекрывает клапан принудительно. Ее можно использовать, отсекая выходы из канализации на ночь, или при попытке прочистить канализационную систему.
- Съемная крышка, которая позволяет проинспектировать состояние клапана и при необходимости выполнить очистку его деталей от загрязнений.
- Запорный механизм. У шарового клапана – это резиновый шарик, но могут также применяться мембраны, заслонки и другие устройства.
Клапан не будет работать, если перепутать «вход» и «выход» местами. Обычно направление движения стоков в клапане показано стрелкой, нанесенной на корпус. Учитывайте его при монтаже!
Основные виды
Прежде всего, клапаны различаются по диаметру. В стандартах для монтажа канализации, оставшихся еще с советских времен, для стояков установлен диаметр в 110 мм, а все прочие трубы имеют диаметр в 50 мм. Сегодня появились и нестандартные варианты, например, с диаметром 75 мм, но они имеют существенно меньшее распространение.
Для изготовления отсечных устройств используют различные материалы. Они могут быть как металлическими (бронза, латунь, нержавеющая или углеродистая сталь), так и полимерными (ПВХ, полиэтилен). Каждый из вариантов имеет свои преимущества и недостатки:
- Металлические изделия стоят существенно дороже. Они долговечны, но требуют внимания к своему состоянию и периодического обслуживания.
- Пластиковые клапаны стоят дешевле. Они практически не корродируют. Но механическая прочность у таких конструкций меньше.
Конструктивно обратные (или фановые) клапаны тоже различаются. Вот наиболее распространенные варианты:

- Шаровый клапан устроен очень просто: в трубе свободно находится резиновый шарик, диаметр которого немного превышает общий диаметр трубы. При движении жидкости в прямом направлении шарик отходит в специальную камеру, а при обратном движении подхваченный водой шарик плотно затыкает горловину трубы. Благодаря столь простой конструкции, в этом устройстве ломаться просто нечему.
- Межфланцевое устройство. Самый компактный вариант. Такой клапан удобен для монтажа в ограниченном пространстве. Но при выходе из строя придется разобрать часть системы, чтобы починить или заменить забарахливший узел.
- Подъемные и поворотные клапаны имеют в конструкции подпружиненные заслонки. Такие устройства сравнительно крупногабаритные, тяжелые и не дешевые. Преимущество – возможность легко выполнить разборку для очистки, регулировки и мелкого ремонта.
Выбор конкретного типа устройства зависит от отпущенного на ремонт бюджета, места установки, типа трубы и имеющихся условий.
Как правильно установить воздушный клапан для канализации читайте в статье: здесь
Виды по принципу работы
Перед тем как установить обратный клапан на канализацию стоит определиться с его типом. Суть функционирования у всех них одинаковая – перекрывать дорогу обратному потоку стоков. Именно по типу преграждающего элемента затворы и классифицируются.
Лепестковый
Его еще называют поворотным, в нем установлена круглая мембрана с пружиной. Ее называют тарелка. Если стоки движутся правильно, то она поднимается, пропуская их. Если движение меняет вектор, она плотно прижимается к ободку – это обеспечивает плотное и герметичное закрывание трубы. Когда стока воды нет вовсе, мембрана захлопывается.
Подъемный
Его функционирование иное – просвет для хода стоков открывается за счет поднятия потоком тарелки закрепленной на пружине. За счет того, что труба нелинейная, в правильном направлении движения стоков тарелка может подниматься, если же они идут не туда, то впираются в пружину и проход им открыться не может.
Это устройство обратного клапана для канализации является более надежным, но его особая конструкция приводит к тому, что чистку нужно осуществлять часто, только в этом случае он будет работать правильно.
Шаровой
Запирающее устройство может работать и не на пружинах, как в первых двух вариантах. У этого типа основной затвор – это шарик. Конструкция такого устройства специфическая и от нее зависит, будет ли происходить беспрепятственное движение стоков. Так, когда поток идет на выход шарик под силой давления закладывается в специальное углубление на корпусе, открывая проход. Если движения нет – то он опускается вниз и перекрывает просвет. Когда начинается обратное движение, он закупоривает канализационную трубу. Эта система не самая надежная, ведь шарик с боковой стенкой не всегда хорошо стыкуются, но затопления все же не будет.
Межфланцевый
Самый компактный затвор, имеет он цилиндрическую форму. Внутри его установлена заслонка, за счет своих небольших габаритов может устанавливаться как вертикальный на трубах. По типу заслонка бывает:
- Односоставная, такая крепиться к стенке корпуса при помощи пружины.
- Двухкомопнентная – в ней элементы закреплены на центральном стержне.
Монтаж этого типа аварийного затвора очень нежелателен. Ведь он срабатывает не всегда, а для чистки нужно отсоединять его от системы.
Для чего нужен обратный клапан: назначение устройства
Перед тем как рассматривать вопрос о назначении клапана, необходимо разобраться, как работает канализация. Система, состоящая из трубопроводов, функционирует по принципу сообщающихся сосудов. Когда на одном из участков возникает засор, стоки, находящиеся в трубах, будут искать пути выхода наружу. Фекалии по трубопроводам будут подниматься и истекать из сантехнических приборов, создавая неприятные условия для жильцов квартиры или дома.
Обратный клапан препятствует истеканию содержимого из труб в случае засора
Для исключения такой ситуации устанавливается канализационный обратный клапан. Главным его предназначением является блокировка обратного движения сточных вод по трубопроводу в случае засора системы. Это происходит в горизонтальных трубах, которые находятся в подвальном помещении. Сточные воды начинают двигаться вверх в поиске доступной точки для истечения. Клапан перекрывает просвет в трубах.
Устройства преимущественно устанавливаются на отводах для подключения сантехприборов на первых и вторых этажах любого многоэтажного дома. Такая двойная мера просто необходима, поскольку стоки, не обнаружив выхода на первом этаже, будут подниматься до второго. Выше этого уровня сточные воды не доходят. Сток уже будет способен продавить пробку и свободно двигаться по канализационной трубе.
Однако в случае сильного засора сети посторонними предметами иногда случаются ситуации, когда фекальные воды могут изливаться из сантехнических приборов, находящихся на более высоких этажах, что зависит от места образования пробки.
В частном доме, который подключен к централизованной сети, обратный клапан монтируется на внутренней стороне канализационного колодца перед выпуском. Данное устройство следует устанавливать и для автономных систем водоотведения, где сток скапливается в сливной яме.
Клапан будет блокировать движение сточных вод обратно по канализации
Устройство и принцип работы
Конструкция устройства вакуумный клапан для канализации весьма проста и имеет небольшое количество элементов. За счет этого демонтаж и разборка не доставляют существенных проблем.
- пластмассовый корпус со специальным отверстием на боку, которое пропускает воздух;
- шток, открывающий и закрывающий боковое отверстие;
- резиновая мембрана;
- герметичная прокладка из резины;
- крышка, защищающая шток от внешнего воздействия.

Вакуумный клапан для канализации
Вакуумный клапан бывает в основном 2 типов размеров – 110 мм и 50 мм. Принцип его работы заключается в открытии бокового отверстия для обеспечения доступа воздуха в систему, при возникновении отрицательного давления. Как только давление сбалансируется, силами гравитации шток автоматически закрывается. При нейтральном или же положительном давлении, система всегда будет закрыта, тем самым не допуская выход воздуха из канализации в помещение.
Условия применения клапана
Воздушный клапан для канализации, прежде всего, должен обеспечивать герметичность системы при условии низкого давления. Установка дополнительного клапана при здании высотой менее 3 этажей не требуется. Стояк по диаметру должен превышать максимальный диаметр трубы горизонтального слива. Соответственно, при использовании стандартного клапана на 110 мм, он должен быть больше слива.

Установленный вакуумный клапан
Так как клапан может применяться при невозможности вывода системы на крышу, у него должен быть определенный запас мощности, позволяющий работать в кратковременных системах. Пропускная способность такого устройства – 32-47 л/сек. Отрицательное давление при этом составляет 250 Па.
При установке в многоэтажные здания, нужно учитывать все предписанные нормы и стандарты. Например, пропускная способность клапана должна как минимум в 5 раз превышать пропускную способность стояка. На зданиях выше 4-ех этажей следуют особым правилам установки систем вентиляции.
Использование клапанов в канализациях строго регулируется отраслевыми стандартами. При проектных работах постройки нового здания, или модернизации имеющегося, нужно учитывать связь таких показателей как пропускная способность и втягивающая способность воды. Объем слива в трубу также напрямую зависит от пропускаемой способности.
Правила монтажа
Устанавливать клапан 110 мм можно горизонтально, вертикально либо же на чердаке. При установке изделия на неотапливаемом чердаке, следует прежде всего утеплить стояк.
Для предотвращения попадания грязи или влаги, которые могут нарушить слабую герметичность конструкции, клапан следует установить на высоте не меньше чем 300 мм от верхней самотечной трубы. Расстояние до ближайшего сифона не должно превышать 200 мм. При установке клапана в туалете либо в ванной, рекомендуется проверять возможность доступа воздуха в эти помещения.
В помещении, где устанавливается клапан, температура воздуха не должна быть ниже 0º. Подмерзание штока существенно сказывается на эффективности работы всей системы. После окончания установки необходимо проверить полную герметичность элементов системы.





































