Производители и цены
Ознакомимся с наиболее популярными на сегодня производителями современных дачных туалетов, и узнаем цены на их изделия.
Элисса
Российский бренд, предлагающий современные недорогие модели дачных унитазов. Производство расположено в Белгородской области, откуда недорогая логистика практически во все регионы страны (кроме дальневосточных).

От производителя Элисса
Унитазы изготавливаются, преимущественно, из керамики, что тоже нравится большинству покупателей. Однако, надо заметить, что под керамическую конструкцию необходимо иметь прочный пол и коммуникации. Сиденье и крышка — пластик.
Модели имеют небольшие размеры, вполне удобны, а вес их благодаря современным технологиям, облегчен. Стоимость унитаза этой марки, в среднем, 2200 руб. Также будет интересно больше узнать про дачный туалет с душем, и как это можно построить своими руками.
Сантехбрянск
Компания предлагает недорогие дачные унитазы из натурального фарфора. Изделия имеют компактные размеры и небольшой вес, благодаря чему вполне органично впишутся практически в любой дачный проект. Стоимость моделей начинается от 1478 руб.

От Сантехбрянск
Фарфор
Кировская компания, которая производит богатый ассортимент обычных и дачных унитазов, прочую сантехнику. Изделия изготавливаются из настоящего фарфора, имеют высокое качество и привлекательный внешний вид.

От Фарфор
К числу достоинств «дачного» унитаза этой марки можно отнести:
- высокое качество сырья;
- прочную керамику;
- удобную чашу унитаза и прочие плюсы.
Стоимость модели унитаза «дачный» – 2176 руб.
Особенности строительства туалета на даче своими руками из разных материалов: чертежи и фото готовых строений
Построить туалет на участке можно из любых материалов, кроме того, это прекрасный способ утилизировать остатки, которые остались после возведения жилого дома.
Как построить туалет на даче своими руками из металла
Для каркаса клозета из металла можно взять уголки, а обшивку выполнить из древесины или любых иных надёжных аналогов. Строительство состоит из следующих этапов.
- Для жёсткого каркаса нам понадобятся асбестоцементные трубы, обработанные с внешней стороны битумной мастикой, которая защитит поверхность от разрушения. Их необходимо вкопать по углам строения на глубину до 70 см.
- Заполнить трубы на треть бетоном.
- Вставить по центру каждой трубы металлические уголки строго вертикально и дополнить трубы бетоном для надёжной фиксации.
- Сварить каркас из вертикальных опор и горизонтальных перемычек. Для них подойдут стальные уголки 50×50 мм². Необходимо предусмотреть уклон крыши от 10º до 30º.
- Установить на основание каркас и соединить сваркой или болтами все элементы.
- Обработать весь металл от коррозии.
- Обшить каркас и кровлю профнастилом при помощи саморезов по металлу с прорезиненными шайбами.
- Можно дополнительно утеплить каркас пенопластом толщиной до 30 мм.
- Внутреннюю отделку можно выполнить любым материалом, в том числе и деревом.
- Для пола подойдёт шлифованная доска толщиной до 50 мм. Обязательно следует сделать подиум.
- Для дверного каркаса подойдут стальные уголки или брус.
- Обработать древесину защитными пропитками.
ФОТО: apsheronsk.reklama-kuban.com
ФОТО: tosno-stroy.ru
ФОТО: ua.all.biz
ФОТО: krov-torg.ru
На видео можно более подробно ознакомиться с процессом строительства туалета из профнастила:
Watch this video on YouTube
Туалет на даче своими руками из кирпича: чертежи, размеры
Если вы решите использовать туалет не только летом, но и в холодный период, кирпич – это лучшее решение. Кроме того, он, в отличие от древесины, прослужит не один десяток лет. При желании, клозет можно дополнительно утеплить. Получится настоящее капитальное строение.
Туалет, построенный из кирпича, чертежи, схемы и фото которого представлены в нашей галерее, имеет крышу с небольшим уклоном. Её обязательно нужно вывести за периметр каркаса на расстояние около 150 мм.
ФОТО: rukozhopim.ru
ФОТО: rukozhopim.ru
ФОТО: beton021.ru
ФОТО: svoimi-rykami.ru
Весь процесс строительства ямы и туалета из кирпича можно посмотреть на видео:
Watch this video on YouTube
Деревянный туалет для дачи своими руками: чертежи и размеры
Если вы планируете построить отхожее место из древесины, её обязательно следует обработать защитной пропиткой. Брус сечением не менее 40×60 мм используют для каркаса, в качестве обшивки подойдёт любой материал. Мы подобрали несколько интересных чертежей с размерами, которые можно взять на вооружение.
ФОТО: hozferma.ru
ФОТО: beton021.ru
ФОТО: vashbiotualet.ru
ФОТО: pinterest.ru
Как своими руками сделать основание из бетона для туалета на даче: размеры, чертежи
Многие владельцы предпочитают покупать готовые кабинки из дерева, для которых потребуется сделать фундамент с ямой самостоятельно. Основание из бетона – это лучшее решение, оно прослужит не один десяток лет. В зависимости от размета туалета, наличия дополнительных пристроек и типа грунта, можно выбрать один из наиболее удобных вариантов.
ФОТО: remontiruj-info.ru
ФОТО: stroypomochnik.ru
ФОТО: nedvigdom.ru
Самостоятельное изготовление
Самостоятельно изготовленный унитаз для дачного туалета – это экономия и возможность получить модель, подходящую вам по размерам и конструкции. Следуя советам опытных мастеров, вы сможете изготовить унитаз, не уступающий покупному по степени удобства и по надежности.
Унитаз для пудр-клозета
Основой для такой конструкции послужит ведро (не менее 10 литров). Чтобы оно стало комфортной конструкцией, необходимо сверху установить съемную надстройку, а затем сидение и крышку. При наполнении резервуара надстройка с сидением поднимаются, а ведро выгружается в компостную яму. Чтобы избежать неприятного запаха и получить более качественный компост, необходимо чтобы около пудр-клозета всегда находилась емкость со смесью для присыпания отходов (золой, торфом или обычной землей).

Импровизированный дачный унитаз
Металлические конструкции
Для изготовления металлической конструкции потребуется листовой оцинкованный металл. Отрезав прямоугольник требуемого размера, его сворачивают в виде трубы
При раскрое важно, чтобы диаметр полученного цилиндра был больше, чем отверстие накопителя. Таким образом, труба надевается на резервуар накопителя
Для установки крышки в верхней части нарезаются и отгибаются «лепестки».
После установки сооружение фиксируется скобами в верхней части и уголками к полу. Основу для сидения изготавливают из фанеры, пластика и пр. и устанавливают на лепестки. Сверху можно поставить покупное мягкое сидение с крышкой.

Металлический самодельный унитаз для дачного участка
Деревянные туалеты
Деревянные модели представляют собой высокую ступень или тумбу в кабинке над выгребной ямой. В верхней плоскости тумбы вырезается по размерам отверстие, на которое устанавливают сидение. Для удобства опорожнения выгребной ямы необходимо предусмотреть наличие открывающейся крышки на петлях или использовать съемный вариант.
Выбираем отдельный септик для бани
Индивидуальный септик для бани при отсутствии центральной канализации – самое оптимальное решение. Когда баня удалена от дома, целесообразно делать отдельный септик. Если баня и дом находятся рядом, можно, конечно, очищать все стоки в одной установке. В такой ситуации при расчете объема очистного сооружения учитываются и воды, поступающие из бани. А это немалый объем. Рассмотрим вариант, когда нужен отдельный септик под баню.
Каким должен быть септик в бане?
Подбирать установку будем с учетом особенностей сточных вод. Что у нас выходит из бани? Как правило, серая мыльная вода с большой концентрацией ПАВ, триглицеридов, жирных кислот. Очень немного волос, кожных и роговых включение. Если в бане имеется туалет, то добавляются черные стоки. Будем рассматривать две бани, без туалета и с туалетом.
Устройство септика для бани без туалета
1. Однокамерная конструкция без дна.
Ее будет вполне достаточно для бани без отдельного туалета. Работает она по принципу фильтрующего колодца. Серые воды не нуждаются в дополнительной очистке.
2. Двухкамерный септик для бани.
Это цельная емкость с перегородкой внутри или две отдельные емкости, соединенные переливом.
Объем очистной конструкции для банного помещения рассчитывается по такому же принципу, как и объем установки для дома: берется трехсуточный запас стоков.
Примерная конструкция однокамерного септика для бани:
- слой щебня,
- подушка из мелкого гравия,
- вентиляционная труба,
- люк для обслуживания.
Двухкамерный септик включает, соответственно, два отсека:
- В первой камере оборудована щебеночно-гравийная подушка и труба перфорации.
- Предварительно очищенная серая вода, достигнув определенной отметки, переливается во вторую камеру. На ее дне – песчаная подушка (не менее пятидесяти сантиметров высотой).
Улучшить процесс очистки можно посредством оборудования дренажного колодца. Щебеночно-гравийная засыпка – прекрасный механический фильтр, удерживающий большую часть взвешенных включений. Даже пена задерживается на этой подушке.
Периодически засыпка нуждается в замене. Когда этот момент настанет, вы почувствуете. Из септика появится специфический запах. Придется полностью сменить щебень и гравий или проработать его дезинфицирующим составом.
Во второй камере оседают более тонкие взвеси. Отсюда вода отправляется на поле фильтрации или в дренажный колодец (зависит от грунта).
Септик для бани с туалетом
В данном случае мы имеем дело с черными стоками. Поэтому конструкции без дна недопустимы. Бани с туалетом рекомендуется оборудовать двухкамерными септиками. Может быть полностью герметичный однокамерный отстойник. Но это не совсем удобно.
Если септик будем делать самостоятельно, то обеспечиваем ему герметичность. Например, решено поставить очистную установку из железобетонных колец. Двухкамерную. Дно первого отсека обязательно бетонируем. Или кладем готовую плиту из бетона.
Для бани с туалетом хорошо подойдут готовые септики малой производительности. Их цена не очень высока. Многие модели имеют плавающую загрузку, которая прекрасно удерживает включения и пену. В результате стоки очищаются лучше, фильтрующая площадка служит дольше.
Нет нужды оборудовать бани дорогими станциями глубокой очистки. Причины:
- автономные решения должны работать постоянно, они хороши для дома, но не для бани,
- ЛОСы стоят много, нецелесообразно использовать их для банных помещений,
- станция глубокой очистки энергозависима.
Для бани выбирайте простейшие установки с механическим фильтром и отстойником. Совмещайте их с почвенной доочисткой – и будет вам счастье.
Выбираем отдельный септик для бани Если есть собственная баня, встает вопрос о сборе и очистке стоков. Оптимальный вариант – отдельная очистная установка. Какой выбрать септик для бани? Поговорим
Выгребные ямы: недостатки
В содержании на своем дворе туалета с выгребной ямой есть целый ряд недостатков. Перечислим основные минусы:
- Довольно высокая конечность стоимость использования – яма регулярно наполняется и требует постоянной очистки, что предполагает частые большие расходы.
- С течением времени стенки ямы имеют свойство разрушаться и как следствие скопившиеся отходы проникают прямо в почву и грунтовые воды, тем самым лишая вас возможности полноценно пользоваться колодцем или источником.
- Рядом с туалетом часто бывает неприятный запах, который делает пребывание в постройке невыносимым.
Таким образом, у выгребных ям довольно много недостатков, которые легко можно устранить при рассмотрении других вариантов обустройства дачных туалетов.
В содержании выгребных ям есть множество минусов, главный из которых – загрязнение грунта и вод, которые в нем расположены
Коммерческий учет сточных вод в безнапорных каналах
Коммерческий учет сточных вод имеет важное значение и требования по его организации определены постановлениями Правительства РФ от 12.02.1999 г. Все фланцы из черной стали СТ20! Подробнее смотрите в комплектующих ! За приведенную цену комплектация: ЭБ US800-10 -1шт; УПР однолуч
(стоки) -1шт; Кабель -по заказу. За приведенную цену комплектация: ЭБ US800-30 -1шт; УПР двухлуч. № 167 «Об утверждении Правил пользования системами коммунального водоснабжения и канализации в РФ» и от 10.04.2007 г. N 219 «Об утверждении Положения об осуществлении государственного мониторинга водных объектов», а также Приказ Минприроды России от 8.07. 2009 г. N 205 «Об утверждении Порядка ведения собственниками водных объектов и водопользователями учета объема забора (изъятия) водных ресурсов из водных объектов и объема сброса сточных вод и (или) дренажных вод, их качества»
Все фланцы из черной стали СТ20! Подробнее смотрите в комплектующих ! За приведенную цену комплектация: ЭБ US800-10 -1шт; УПР однолуч. (стоки) -1шт; Кабель -по заказу. За приведенную цену комплектация: ЭБ US800-30 -1шт; УПР двухлуч.
№ 167 «Об утверждении Правил пользования системами коммунального водоснабжения и канализации в РФ» и от 10.04.2007 г. N 219 «Об утверждении Положения об осуществлении государственного мониторинга водных объектов», а также Приказ Минприроды России от 8.07. 2009 г. N 205 «Об утверждении Порядка ведения собственниками водных объектов и водопользователями учета объема забора (изъятия) водных ресурсов из водных объектов и объема сброса сточных вод и (или) дренажных вод, их качества».
Сточные воды — это воды, загрязненные бытовыми отбросами и производственными отходами, а также воды, образующиеся в результате выпадения атмосферных осадков в пределах территорий населенных пунктов и промышленных объектов. Удаляются сточные воды с этих территорий через системы канализации. Канализация — это комплекс инженерных сооружений, оборудования и санитарных мероприятий, обеспечивающих сбор и отведение загрязненных сточных вод, а также их очистку и обезвреживание перед утилизацией или сбросом в водоемы.
Различают внутреннюю и наружную канализацию.
Внутренняя расположена внутри зданий и сооружений и служит для сбора и вывода сточных вод в наружную канализационную сеть.
Здесь осуществляется транспортирование сточных вод за пределы населенных мест и промышленных объектов.
Элементами внутренней канализации являются санитарные приборы, отводы, стояки и выпуски
Выбор материалов
Строительство туалета на даче своими руками возможно из различных материалов. Выбор определяется стоимостью и доступностью различных вариантов. Например, если уличный туалет устраивается как временное сооружение на время строительства полноценной канализационной системы, можно выбрать материалы подешевле. Если же дача посещается только летом и уличный туалет будет единственным вариантом, лучше предпочесть надежность и долговечность, даже если потребуются дополнительные расходы.
Деревянные модели
Деревянные уличные туалеты – это, наверное, наиболее распространенный вариант. Он сочетает экономичность и практичность, однако, следует учитывать, что дерево восприимчиво ко влажности. Для защиты материала можно использовать специальные пропитки. Значительно увеличить срок службы материала можно, прогрунтовав и покрасив доски. Любители натуральной фактуры дерева часто покрывают сооружения прозрачным влагонепроницаемым лаком.
Деревянный дачный туалет в разных вариациях
Кирпичный туалет
Кирпичный туалет – это капитальное сооружение, которое будет стоять, не требуя ремонта, десятки лет. Стоимость материалов для такой конструкции выше, но если у вас осталось некоторое количество кирпичей после строительства дома или гаража, следует воспользоваться такой возможностью. Если вы планируете построить туалет из кирпича на даче своими руками, не забудьте о том, что массивная конструкция требует установки на фундамент. Специалисты рекомендуют для дачного туалета выбирать ленточный фундамент. Он требует меньшего количества земляных работ, позволяет снизить расход цемента для заливки, но обеспечивает надежность и безопасность конструкций практически на любых грунтах. Хотя для конструкций из более легких материалов возможно и использование столбчатого фундамента.
Кирпичный туалет на участке
Использование профнастила
Дачный туалет из профнастила – это каркасная конструкция, обшитая листовым металлическим материалом. Профнастил имеет покрытие, защищающее его от влаги, поэтому может использоваться для построек на открытом воздухе без всякого риска. Каркас постройки — деревянный или металлический по выбору. Использование профнастила позволяет существенно сократить время строительства туалета.
Уличный туалет из профнастила
Рекомендации
Советы для более грамотного выбора дачного туалета.
Дачный унитаз не должен иметь слива, если конечно, вы не планируете подключать его к централизованному водопроводу и канализации. Устройство также не должно представлять собой сложную, «навороченную» конструкцию. Идеально, если унитаз для дачи будет элементарным, простым, функциональным, будет легко устанавливаться и демонтироваться при необходимости. Периодический демонтаж устройства необходим для очистки выгребной ямы.
Совет: выбирая модель унитаза для дачи рекомендуем обратить внимание на те из них, что не требуют при установке/демонтаже использования электрических инструментов. Ведь очень часто доступ к электрическим сетям на даче бывает затруднен, особенно если туалет будет отдельно стоящим строением
Не стоит устанавливать на сезонной даче слишком дорогую модель унитаза. Такая роскошь в условиях кратковременного летнего проживания совершенно неоправданна, и вряд ли себя окупит. К тому же не секрет, что осенью и зимой в дачных поселениях частенько хозяйничают воры: не стоит давать им лишний повод ворваться именно в ваш дом.
Лучше всего приобрести унитаз, имеющий широкое основание. Такая модель будет устойчивой и надежной, к тому же будет исключена необходимость дополнительно покупать и монтировать сидения для унитаза.
На видео – рекомендации по выбору:
Выбирая готовую туалетную кабинку, убедитесь, что сооружение имеет окно над входной дверью. Это окно будет играть роль источника освещения, а также послужит для вентиляции.
В летнее время на даче удобнее и гигиеничнее пользоваться отдельно стоящей кабинкой. Если унитаз будет оборудован внутри, это может в жару создать массу неудобств, связанных с запахом, кишащими мухами и прочими неприятностями. Но никто не запрещает иметь два туалета: внутренний для зимы и непогоды и летний: для гостей и жаркого времени. Если вы устраиваете на даче посиделки с соседями, гостями, то отдельно стоящая в саду кабинка будет очень удобна: гостям не придется каждый раз заходить в дом при необходимости посетить туалет.
Возможно вам также будет интеерсно узнать о том, как выглядит, и как используется Финский торфяной туалет.
Что собой представляют биоактиваторы и как они работают
Если внимательно присмотреться к этикеткам, то можно заметить, что «чудо-препараты», называемые биоактиваторами, как правило, включают в себя:
- Культуры почвенных бактерий.
- Ферментирующие вещества.
- Наполнители, в основном представленные кукурузной мукой.
Говоря простым языком, приобретая пакетик с чарующим воображение словом «биоактиватор», вы становитесь владельцем полчища одурманенным ферментами бактерий. Попадая в очистное сооружение, они сжирают все, что им попадается на пути, а в итоге испускают дух от ломки, вызванной недостатком сожранного ими ферментного «дурмана». Их бурная, но короткая жизнедеятельность оказывает подавляющее воздействие на естественные бактерии – мирное население септиков, занимающееся неспешной переработкой находящихся в септике отходов.
И что же получается в итоге? Владелец очистных сооружений становится заложником производителей чудо-порошка: ему придется без конца покупать и подсыпать этот «шедевр», чтобы биологические процессы, происходящие в септике, не остановились окончательно. Но если бы первичная доза не была засыпана, то работа естественных бактерий шла бы своим чередом, практически ничего не требуя от человека.

Особенности уличных туалетов
Самостоятельно построить можно практически любую модель уличного туалета за исключением био-конструкций. Основными элементами являются накопительная емкость и унитаз для дачи.
Объемные накопители могут строиться как выгребные ямы с использованием бетонного раствора (заливное возведение стенок и дна), готовых бетонных колец, кирпича, автомобильных шин. Можно использовать и готовые резервуары различной вместительности – от обычных пластмассовых ведер до бочек и еврокубов. Небольшие резервуары могут изготавливаться и самостоятельно из листового оцинкованного металла.
Накопитель, как правило, располагают под землей, вырывая котлованы. На поверхности устраивают небольшое возвышение. Тут и возникает вопрос – как выбрать унитаз для уличного туалета?
Самым простым вариантом является монтаж на возвышении обычного стульчака с крышкой, однако такое устройство не всегда удобно. Идея использовать обычную керамику, предназначенную для установки в квартире, не будет удачной. Многие модели имеют наклон, благодаря которому отходы при смыве поступают в канализационную систему. Уличные туалеты не имеют смыва под напором, поэтому нужно выбирать унитаз для дачи прямой, через который содержимое, не задерживаясь, будет сбрасываться в накопитель. Плюс, керамический унитаз имеет достаточно большой вес, что не всегда приемлемо для дачных построек.
Популярным готовым вариантом является унитаз для дачи пластмассовый, который имеет небольшой вес и отлично выполняет все необходимые функции.

На фото пластмассовый унитаз для дачного туалета
Либо же можно рассмотреть варианты, как сделать унитаз на даче своими руками.
Нормы и рекомендации по установке
Так как стационарная канализационная система на дачных участках — редкость, проблема с отходами решается при помощи выгребной ямы. Именно наличие ее или септика определяет все ограничения и требования по размещению туалетного домика.
Итак, установка дачного туалета предполагает его удаление от:
- жилого дома на 10-12 метров;
- детской игровой площадки или гаража с погребом на те же 10 + метров;
- бани или летнего душа на 8 м;
- стационарного источника питьевой воды на 25 или более метров;
- набираемого колодца на 8 м;
- общего забора с соседями минимум на 1 метр;
- забора, выходящего на улицу, на 3-5 м.
Важно! Требования СНиП 30-02-97 — не рекомендации, а правила, которые обязательно нужно соблюдать. Нарушителям грозит штраф до 5000 рублей и принужденный перенос дачного туалета
Вышеперечисленные требования, позволяют предотвратить множество проблем, которые может создать неправильно расположенный туалет с выгребной ямой. Среди возможных проблем:
- неприятные запахи на своем или соседском дачном участке, которые не только нарушают комфорт, но и наносят вред здоровью;
- вредоносные бактерии, заражающие землю и культуры, растущие в ней;
- порча питьевой воды (если выгребная яма располагается слишком близко к скважине).
Важно! Если нечистоты из дачного туалета будут уходить в выгребную яму, расположите последнюю так, чтобы к ней могла подъехать ассенизаторская машина. Чтобы построить комфортный дачный туалет, нужно запомнить не только расстояния от ближайших построек, но и габариты самого туалетного домика
Размеры кабинки уже не регламентируются специальными документами, они зависят лишь от личных предпочтений
Чтобы построить комфортный дачный туалет, нужно запомнить не только расстояния от ближайших построек, но и габариты самого туалетного домика. Размеры кабинки уже не регламентируются специальными документами, они зависят лишь от личных предпочтений.
С одной стороны может показаться, что чем просторнее — тем лучше. С другой — на большую конструкцию придется заложить больше затрат: это касается не только финансов, но и сил, а также площади на участке.
Поэтому при строительстве туалета на даче своими руками рекомендуется соблюдать принцип достаточного комфорта: то есть сделать сооружение не больше, чем на самом деле нужно. Чтобы определить габариты туалета на даче было проще, вот некоторые полезные цифры:
- габариты покупных биотуалетов ~110-120 см по каждой стороне;
- размеры готового биоунитаза примерно 40*40 см;
- по бокам от унитаза или отверстия должно быть около 30 см с каждой стороны;
- перед сиденьем желательно оставить минимум 55-60 см до двери.
Виды унитазов на даче

Схема дачного туалета: 1. дымоход, 2. люфт-канал, 3. деревянная крышка, 4. чугунная вытяжка, 5. вытяжка, 6. глиняный замок, 7. кирпич.
Совсем недавно единственным решение для деревянного туалета, сколоченного из досок, была либо обычная дыра в деревянном настиле, либо более удобный стульчак из дерева — возвышение с отверстием, которое иногда именуют прилавком. Как показала практика, с точки зрения комфорта эти варианты не слишком удобны.
Обратите внимание, что пластиковые туалеты намного удобнее, с ними нет особых хлопот, нужно просто выбрать и оплатить выбранный вариант, а монтаж и обслуживание фирмы-поставщики обычно берут на себя. Однако такое удовольствие весьма недешево, да и возможности получить удобрения при установке такого туалета нет
Поэтому целесообразной будет постройка дачного туалета своими руками.
Статья по теме: Зачем нужны клипсы для штор: коротко о главном
Отличным решением в этой ситуации может стать простой унитаз, который устанавливается прямо над выгребной ямой. Другие варианты, предполагающие устройство септика вместо выгребной ямы, не менее популярны. На дачном участке, имеющем водоснабжение и канализацию, построить туалет с унитазом своими руками несложно. Но чаще всего к отдельно стоящему туалету вода не подводится.

Схема монтажа унитаза.
Следует знать, что напольный фаянсовый унитаз имеет большой вес. Деревянный дощатый пол может просто провалиться под его тяжестью. Этот вариант более уместен в капитальных постройках с бетонными полами.
К счастью, сейчас можно приобрести специальные унитазы для дачного туалета, изготовленные из пластика. Они представлены в разных цветах, наиболее популярными являются модели темных тонов. Пластик обладает достаточной прочностью и способен выдерживать вес сидящего человека. Собственный вес унитаза при этом небольшой. Такими красивыми и удобными унитазами оборудуют все больше дачных туалетов.
Как определить что отравлены бактерии
Ситуация не новая, и надо сказать что и такое бывает, когда за не маленькие деньги покупаешь станцию глубокой биологической очистки, да еще и заказываешь монтаж, который стоит в половину стоимости септика, после того как установили септик воняет. В этой статье я расскажу вам с чем это может быть связано.
Как вы знаете станция глубокой биологической очистки работает за счет создания благоприятной среды для зарождения и проживания в ней бактерий, т.е. биология. Благоприятная среда создается за счет правильного распределения воздушного потока и поддержание необходимой концентрации, лишние бактерии (ил) удалятся при техническом обслуживании, который необходимо делать минимум 2 раз в 6 месяцев.
Отчего бактерии могут отравиться, спросите вы. На самом деле бактерии привередливы и если сливать в канализацию что попало, вы незамедлительно получите вонь и запах как возле септика так и возможно в доме. Именно так вы узнаете о том, что бактерии в вашем септике отравлены и ни о какой биологической очистке стоков речи быть не может.

Следуя простым правилом у вас будут живые бактерии и септик будет работать правильно.
Вот так выглядят мертвые бактерии. И очень зловонно пахнет.

На фото мы видим большое скопление непонятной массы в камере аэротенка, а если вовремя не уследить то может появиться и во всех камерах. Эта масса и есть бактерии, только мертвые. По факту бактерии это ил, и когда они отмирают они становятся легче, всплывая создают вот такую шапку. Если вовремя не устранить проблему с отравлением бактерий, вся эта масса попадет в систему дренажа септика и забивает его. Хорошо если у вас дренажный колодец и его можно почистить, но часто бывают закладывают дренажную перфорированную трубу — в ней перфорация забивается очень быстро.

Не многие знают, что отравление бактерий в септике можно определить по их цвету:
- слишком светло-коричневые бактерии отравлены пищевыми отходами или лекарствами;
- серый сток — отравление химическими средствами типа хлорки или большое количество порошка.
Подготовка проекта душевой, совмещённой с санузлом
Конструкция совмещённого туалета с душем должна быть, прежде всего, функциональной и удобной. Её конструируют любой формы, размера и цвета. Комфортным в использовании станет домик размером 2750х200х2520 мм. В таких помещениях удобно устанавливать прямоугольные лавки и полки. Возвести каркас такой формы не представляет сложности. На схеме и чертеже ниже показаны оптимальные параметры для постройки этого сооружения.

Здесь представлен раздельный туалет с душем в одном сооружении. Конструкция расположена на столбчатом фундаменте. Её размеры позволяют удобно использовать сооружение по назначению. Помещения душевой и туалета имеют габариты, достаточные для размещения дополнительной мебели и сантехники. В туалете можно поместить умывальник и полки, а в душевой комнатке — лавки и кабину для купания. При ширине 130 см и длине 200 см в каждом помещении не будет тесно. Высота 2,5 м даёт возможность пользоваться этой постройкой даже очень высокому человеку.

Если дверь открывается, как показано на чертеже, то умывальник лучше расположить с правой стороны. В этом случае при входе и выходе из помещения туалета не будет мешать раковина. Лавку в душевой комнате можно установить таким же образом.
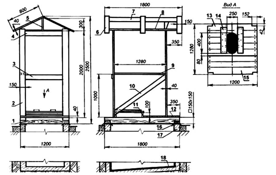
Дачный туалет из дерева – чертежи с размерами
Конечно, чаще всего, решив построить уличный туалет своими руками, в качестве основного строительного материала используют древесину. Она дешева, доступна, легка в обработке и дает немалый простор для творчества. Тем более, что вариантов строительства тут много. Давайте изучим наиболее интересные из них, а заодно выделим размеры дачного туалета.
Теремок
Этот туалет для дачи также известен, как избушка. Считается наиболее сложной архитектурной формой, но в то же время одной из самых красивых. Материалов на строительство придется потратить немало – подрезать приходится много.
Но перерасход древесины компенсируется не только внешней красотой, но и тем, что туалет типа «теремок» хорошо сохраняет тепло даже зимой, да и дождь со снегом доставляют меньше хлопот, чем в других постройках подобного типа.
Домик
Ещё одно удачное решение, если вы хотите построить комфортный туалет на дачном участке своими руками. Места он занимает не больше, чем простейший скворечник, но при этом имеет более высокую прочность, да и по уровню комфорта не сравнится с ним.
Скворечник
А вот тем мастерам, которые при строительстве выбирают проекты максимальной простоты, наверняка понравится деревянный скворечник. Возвести его на участке своими руками проще всего. Односкатная крыша и примитивная схема позволяют уменьшить расход строительных материалов. К тому же, крыша дачного туалета дает возможность легко разместить напорный бак – полезная вещь, если вы планируете строить туалет с унитазом.
Но недостатков у конструкции немало. В первую очередь – постройка получается шаткой. К тому же, она легко продувается ветром. Наконец, при обильных осадках влага наверняка просочится внутрь, что также не добавит комфорта.
Шалаш
Желаете красивый деревенский туалет, удобный в эксплуатации и простой в строительстве? Тогда вам подойдет шалаш. Архитектурная форма выглядит просто, благодаря двускатной крыше. Но при этом постройка обладает устойчивостью к осадкам и ветрам. Особый дизайн делает её ещё и прочной. Расход материалов также сравнительно невелик.
Очистка
Обзаведясь на даче туалетом, не стоит забывать о необходимости регулярной очистки этого сооружения. Какие этапы работы по очистке необходимо предпринять, узнаем.
Во-первых, каждый раз необходимо вначале убедиться, что очистка, действительно, необходима. Процесс не самый приятный, поэтому логично проводить его, когда в этом есть реальная необходимость.
Приготовьте все необходимые инструменты и приспособления, необходимые для успешного выполнения работы. Выполните очистку ямы, используя либо механический способ, либо химический. В случае использования второго варианта снимается необходимость демонтажа и последующей установки унитаза.
Если вы ни разу не выполняли подобные работы и не хотите браться (что неудивительно), лучше всего вызвать ассенизаторскую службу, работники которой произведут очистку профессионально, быстро и в удобное для вас время.
Мы рассмотрели особенности обустройства дачного туалета с унитазом. Как вы видите, вполне реально иметь на даче удобства, сопоставимые с городской квартирой. Современные производители и высокотехнологичные материалы дают покупателям возможность обустроить дачу максимально комфортным и, в то же время, недорогим образом.





































