Инсталляция геберит инструкция по установке. Geberit инсталляция для подвесного унитаза: инструкция по установке
Швейцарская компания Geberit производит и поставляет на российский рынок несколько моделей инсталляций. Компактные конструкции пользуются популярностью у потребителей благодаря надежности, эстетичности и простоте монтажа.
Особенности инсталляции Геберит

Инсталляция Геберит
Инсталляция Геберит выпускается в двух типах конструкций и трех товарных линиях. Блочная предназначена для монтажа в нише капитальных стен. Рамная состоит из прямоугольного стального каркаса и комплектующих. Может крепиться в любом месте.
Система Geberit для WC выпускается в трех разновидностях: «Sigma», «Omega» и «Delta».
Сигма – линия премиальная. Потребителю предлагается широкий спектр дизайнерских решений клавиш: от прочного пластика до позолоты. Delta – бюджетное предложение с ограниченным набором кнопок, по функциональности особых отличий нет. Инсталляция для унитаза Геберит Omega предназначена для установки под окно в частных домах со скатной крышей.
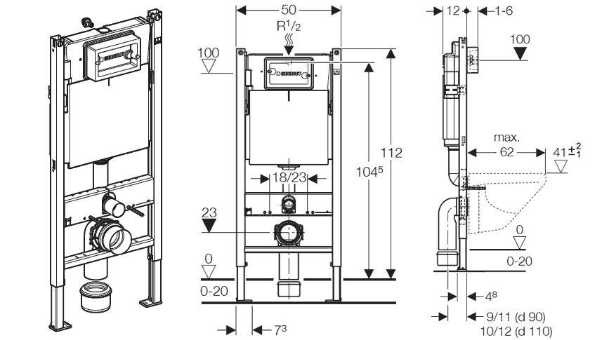
Серии Delta и Sigma выпускаются в разных вариантах: ультратонкая 8 см, стандартная 12 см, для лиц с ограниченными возможностями. Модификация Plattenbau предназначена для панельных домов.
Вся продукция Геберит отличается следующими достоинствами:
- экономит площадь в санузле;
- позволяет произвести монтаж в любом удобном месте;
- возможность подбора для любой квартиры и частного дома.
Схема инсталляция геберит. Схема подключения скрытого бачка геберит. Инсталляция Geberit: применение и все тонкости монтажа своими руками
Изделия Geberit, спроектированные для скрытого монтажа, прослужат вам долгие годы благодаря высокому качеству и надежности
Сантехнические работы всегда вызывают немало сложных вопросов даже у мастеров, которые годами занимаются подобной деятельностью. Примером служат новомодные приспособления, такие как инсталляция Geberit. Особые проблемы возникают, если инструкция отсутствует или она на непонятном языке. Поэтому смотрим дальше и учим основы.
- Особенности конструкции
- Подготовка
- Как собрать рамную модель для подвесного унитаза?
- Как собрать блочную модель?
- Завершение установки
- Выводы
Мозаика в интерьере гигиенической комнаты
Особенности конструкции
Данная конструкция достаточно нова и появилась в современном быту совсем недавно благодаря подвесным унитазам . Она представляет собой набор взаимосвязанных деталей, скрываемых за созданной собственноручно декоративной стеной на основе гипсокартона. Благодаря особой структуре она позволяет надежно закрепить сантехнику и без проблем подсоединить ее к водоснабжению и канализации, а самое главное – заменит традиционный громоздкий, неудобный в использовании сливной бачок .
Совет! Подобные изделия выпускаются серийно, поэтому переживать, что не найдется каких-то деталей при ремонте, не стоит, тем более что в комплект поставки входит все самое необходимое.
Существуют несколько выпускаемых модификаций, и каждая имеет свои индивидуальные технические особенности, но принцип их работы одинаков. Главным их различием является тип. Он бывает:
- блочным;
- рамным.
Скрытая система инсталляции
- Первый тип имеет один существенный недостаток, поскольку монтировать его можно исключительно на капитальные или несущие стены. Сделать это в санузле , находящемся в центральной части дома или квартиры , невозможно.
- Второй тип лишен этого недостатка, но имеет некоторые оговорки при закреплении.
Помимо этого, встречаются варианты, отличающиеся по внешнему виду, которые позволяют поставить унитаз не у стены, а в углу туалетной комнаты .
Подвесные унитазы на сегодняшний день очень популярны
Узнать тот или иной вариант в продаже просто: блочный лишен раздвижной рамы и состоит исключительно из таких компонентов, как:
- арматура;
- крепежные элементы;
- декоративная фурнитура.
Выбирайте крепление в зависимости от места, где планируете установить сантехнику.
Подготовка
Прежде чем начать основной процесс, необходимо подготовить рабочее пространство и обзавестись соответствующими инструментами. Вам пригодятся следующие:
- перфоратор;
- шуруповерт со сверлами (в том числе по бетону);
Монтаж инсталляции лучше доверить профессионалам
- строительный уровень;
- рулетка;
- гаечные ключи соответствующего размера;
- нож и болгарка с насадками для резки гипсокартона;
- шпатель;
- маркер.
Дерево в интерьере туалетной комнаты
Стильная ванная комната, совмещенная с туалетом
Из дополнительных расходных материалов пригодятся:
- дюбеля, устанавливаемые в монтажные отверстия;
- силиконовый герметик;
- монтажная пена;
- шурупы для ГКЛ;
- финишная шпаклевка .
Если процедура проводится в жилом помещении, прежде всего нужно демонтировать старый стульчак и снять облицовку со стен .
Демонтаж старого унитаза
Снятие старой облицовки стен
Следующим шагом может стать перемещение канализационного отверстия в соответствии с задуманной планировкой и дизайном помещения . Этого можно добиться, используя специальные приспособления – адаптеры, изготовленные из пластика.

Установка инсталляции Geberit. Инсталляция Geberit — лучшее решение для вашего санузла
Виды, достоинства инсталляции Geberit с унитазом в комплекте
Системы инсталляции с унитазом выпускают многие производители. Ассортимент их разнообразен, но лучшей является Geberit. Компания выпускает инсталляции 2-х типов: блочные и рамные. Первая отличается простотой, но крепят ее только в нишах капитальных стен. В состав рамной инсталляции входит стальная рама и комплектующие: вывода для канализации, крепеж. Такая конструкция может быть и угловой.

Стальная рама позволит вам закрепить конструкцию без большой нагрузки на стену
Большим преимуществом является то, что ее установка возможна там, где нет технической возможности установить другие конструкции. Специальная рама и полуметровые шпильки позволяют выполнить монтаж даже при наличии труб за унитазом.
Кроме того, пользователям нравится:
- Простота монтажа.
- Швейцарское качество и точность.
- Длительная гарантия (10 лет).
- Гарантированное наличие запасных частей. Когда модель скрытой системы снимают с производства, запчасти к ней сохраняются на протяжении 25 лет.
Внимание! Если в санузле нет капитальных стен, то есть возможность установить только рамную инсталляцию
Инструкция по установке инсталляции
Арматура Geberit крепится к основанию унитаза с использованием отводной трубы, подсоединяемой к нему под углом 90 градусов. Это проверенная надежная конструкция. В набор входит заслонка, закрывающая стык и манжетка декоративная для трубы. Хотя внутренний механизм и находится в стене. Доступ к сливной конструкции возможен через панель смыва.

Несмотря на внешнюю изящность, конструкция способна выдерживать большой вес
Установка блочной инсталляции
Для установки потребуется инструмент:
- перфоратор;
- ключи нужных размеров;
- маркер.
Процесс установки состоит из нескольких шагов:
- Выбирают место. В стандартном санузле это ниша, где расположены стояки. Если они металлические, лучше заменить на пластик.
- Выполняют разметку.
- Измеряют высоту. Отмечают места для дюбелей, взяв размеры из инструкции.
- Проделывают отверстия перфоратором и забивают дюбели.
Процесс подключения к коммуникациям
- Прикручивают бак для слива.
- Проверяют, все ли прокладки на месте, подключают воду.
- Вкручивают штифты в отверстия, проделанные ранее.
- Фиксируют сливной шланг хомутами.
Установка рамной инсталляции
Технология установки унитаза с рамной инсталляцией следующая:
- Собирают каркас. В окончательном виде конструкция будет иметь высоту от 1,3-1,4 м. Ширина подбирается под конкретную модель.
- Крепят сливной бак, при этом кнопка для слива должна располагаться на высоте 1 м от пола, унитаз — 0,41-0,45 м, выход в канализацию — около 0,25 м.
Крепление сливного бака
- Устанавливают конструкцию с обязательным соблюдением горизонтальности, для чего раму прикладывают к стене и отмечают, где разместится крепеж. Выполняют отверстия, крепят раму к полу.
- Подводят водопроводную трубу к сливному баку.
- Соединяют выпуск унитаза со стояком.
- Проверяют герметичность соединений.
- Зашивают раму гипсокартоном, предварительно закрыв все отверстия и закрутив штифты для фиксации унитаза в раму.
Создание гипсокартонного короба
- Устанавливают унитаз, выждав недели полторы, пока кафель схватится.
- Герметизируют стыки и испытывают, спустив воду.
Совет: когда подключаете сливной бак, не используйте гибкий шланг. Он недолговечен, а для замены придется разрушать стену.
На качество инсталляции Geberit в комплекте с унитазом нареканий обычно нет:
- Ольга. Для установки инсталляции приглашали опытного специалиста. Особый восторг вызывает работа автоматического слива. Чувствуется, что эта техника для человека.
- Игорь. Инсталляция Geberit сделана с умом, надежная. Все мелочи продуманы.
- Андрей. Не зря Geberit находится в высшей ценовой категории. Нравится все, особенно дизайн панели смыва. Рама мощная, арматура надежная.

Инсталяции хорошо вписываются в интерьер ванных комнат
- Артем. Поставил модель Gebirit DuoFresh. Очень хороша, есть функция удаления запаха — укомплектована вытяжным вентилятором с фильтром, можно таблетки закладывать.
- Марина. Впечатления от инсталляции Gebirit только положительные. Вода набирается бесшумно, кнопки не западают. За год работы не возникало никаких нареканий.
- Вадим. Я своим заказчикам советую Gebirit. Инсталляция надежная, даже через длительное время не меняет геометрию и не выходит со строя. Если необходимо заменить что-то внутри, стену разбирать не нужно — элементы инсталляции можно извлечь через отверстие для кнопки.
Инсталляция с подвесным унитазом Gebirit выглядит элегантно. Она гармонично вписывается в дизайн санузла.




Как собрать блочную модель?
Особенностью этого типа является его универсальность. В большинстве случаев его можно применять для напольных и навесных унитазов , однако установка будет незначительно отличаться.
- Сначала потребуется провести разметку, а именно нанести ось симметрии и в соответствии с ней наносить прочие точки и линии. Их положение и требуемое расстояние между ними можно узнать из комплектной инструкции. По установленным меткам сверлятся или пробиваются перфоратором дыры, а в них устанавливаются дюбеля для .
- Далее требуется зафиксировать сливной бачок и подключить его с помощью шланга к водопроводу.
- На конечной стадии для подвесного стульчака нужно вкрутить штифты, а в случае с напольным – сделать новые метки на , чтобы впоследствии просверлить их и зафиксировать крепления, предварительно проделав ту же процедуру с коленом. Для их соединения используется специальная фурнитура, называемая манжетой.
Швейцарская компания Geberit уже много лет удачно занимается изготовлением и реализацией разного санитарно-технического оборудования.
К примеру, предприятие производит комплектующие для сливных бачков, поставляя детали для различных мировых концернов, а также самостоятельно создавая при этом готовую продукцию.
Большой популярностью пользуется система Geberit для унитазов. Высокие эксплуатационные качества и приемлемая стоимость делают эти устройства очень востребованными на рынке.
Системы «Геберит»
Популярными видами инсталляций для ванной и туалета являются «Kombifix» и «Duofix». «Kombifix» хорошо монтируется на капитальные стены. Эти системы специально произведены для монтирования на кирпичные и бетонные стены. инсталляции выпускаются для биде, для умывальников, для душевых трапов, для писсуаров, в качестве комплектующих.
«Geberit Kombifix»
Предварительная узловая сборка позволит установить комплект за считанные секунды. Инсталляции данной модели надежны и прослужат на протяжении гарантийного срока. Уже при выпуске комплекс идет вместе с набором заводских деталей.
В перечень деталей входят наполнительный сегмент, прочные и долговечные материалы для креплений, сливной патрубок, элементы, которые используются для звукоизоляции. Эти же элементы используются для монтирования «AquaClean».
С этой программой монтируются умывальники, писсуары, биде и подвесные унитазы.
Порядок монтирования:
- Зафиксируйте блок для монтажа в четырех местах, отведенных для крепления, на стене;
- Соедините изделие с трубами, проводящими воду;
- Замуруйте и отшлифуйте места крепления комплекта;
- Закрепите сантехнику на то место, где был закреплен блок, и подведите трубы к унитазу или биде.
«Geberit Duofix»
Даннаяя модель монтируется на сантехническую поверхность. Она предназначена для подвесных унитазов. Стандартный комплект высотой до 112 см, а вместе со сливным бачком 336 см.

Можно выбрать комплект той ширины, которую вы хотите, такая конфигурация позволит смонтировать изделие даже в труднодоступном месте. «Geberit Duofix» был использован в комплекте со встроенным смывным бачком 12 см в модели «DuoFresh». Дополнительно к этой модели придется приобрести смывную клавишу «Sigma40», а также монтажный блок, проводящий электричество.
Достоинства и недостатки навесных унитазов с инсталляцией
Преимущества подвесных конструкций:
- Значительное упрощение уборки. Подвесные унитазы в первую очередь создавались именно для того, чтобы облегчить уборку санузла, если установка навесного унитаза выполнена правильно, поскольку наличие в нем напольных конструкций создает несколько труднодоступных зон.
- Отличные эстетические качества. Навесные устройства характеризуются хорошим внешним видом и умением «вписываться» в интерьер. Объяснить это явление просто: на виду нет никаких труб, все внутренние элементы закрыты обшивкой, которая может быть обработана в стиле, наиболее соответствующем интерьеру санузла. Незамаскированными остаются лишь чаша унитаза и клавиша слива – а их правильный выбор будет хорошим дизайнерским решением.
- Визуальное преимущество. Помимо хороших дизайнерских качеств, подвесные конструкции в глазах человека выглядят лучше с точки зрения рациональности. Как правило, человеческий взгляд оценивает помещение по полу и потолку. Пол в данном случае разгружается, и создается впечатление, что санузел немного больше.
- Освобождение пространства. Конструкция навесных унитазов действительно освобождает небольшое количество места, но этот момент считается самым спорным: ведь на практике выходит, что стенка с установленной инсталляцией стремится к противоположной стороне помещения, поэтому экономия места будет незначительной.
Недостатки навесных унитазов:
- Сложность монтажа. Да, установка унитаза с инсталляцией своими руками доступна любому человеку, но это потребует больших усилий и наличия некоторых специфических инструментов. Напольные конструкции в этом плане предпочтительнее.
- Трудоемкость ремонтных работ, связанная с помещением. Установка или ремонт инсталляции не могут быть осуществлены без предварительного разбора части помещения – и здесь напольные унитазы опять выигрывают.
- Затрудненный доступ ко внутренним элементам системы. Чтобы добраться до отдельных деталей, например, бачка, придется потратить много усилий на преодоление люка, расположенного за клавишей слива.
- Невозможность быстрого ремонта. Поскольку доступ к коммуникациям затруднен, то и осуществлять их ремонт в таких условиях практически невозможно, поскольку опять всплывает тема разборки части стены.
Производители инсталляций
На рынке России можно приобрести инсталляции большого количества различных производителей, но специалисты рекомендуют приобретать изделия следующих фирм:
- Геберит;
- Grohe;
- Tece;
- Cersanit;
- Viega.
Geberit
Швейцарская компания Geberit давно зарекомендовала себя как надежного производителя сантехнического оборудования. Инсталляция Geberit Duofix отличается:
- возможностью установки в сложных условиях. Специальная рама и удлиненные до 50 см шпильки позволяют смонтировать конструкцию даже при ближайшем расположении канализационных труб;

Устройство для подвесного унитаза швейцарского производителя
- высоким качеством. Фирма-производитель дает заводскую гарантию на изделие сроком на 10 лет;
- простотой монтажа. По мнению профессиональных сантехников, данное устройство устанавливается проще, чем иные аналогичные конструкции, что связано с особенностью конфигурации;
- возможностью приобретения запасных частей даже после снятия отдельного вида с производства.
Отрицательными качествами инсталляции Geberit Duofix являются:
- достаточно высокая стоимость изделий. Минимальная цена составляет 12,5 тыс. рублей (180 $) и повышается в зависимости от наличия дополнительных опций и отдельных дизайнерских решений;
- в комплект инсталляции не входят крепежные элементы. Их необходимо приобретать дополнительно.

Элементы крепления инсталляции
В целом система крепления полностью оправдывает затраченные на приобретение денежные средства.
Процесс установки рассматриваемого вида инсталляции представлен на видео.
Grohe
Германская компания Grohe специализируется на выпуске арматуры для ванной
Производством инсталляций фирма занимается сравнительно недавно, но уже успела завоевать внимание как потребителей любителей, так и профессиональных мастеров
Инсталляция Grohe Rapid SL отличается:
- высоким качеством исполнения конструкции. Мощная рама изготовлена из качественного металла, который в свою очередь защищен специальным слоем от коррозии. Исполнение сварных швов конструкции близко к идеальному;
- отсутствием проблем при установке. К каждому изделию прилагается подробная инструкция по монтажу крепежной системы, что позволяет установить устройство без помощи профессионалов;
- установленный сливной бачок дополнен системой бесшумного набора воды;
- гарантия производителя составляет 5 лет.

Система для крепления унитаза от германской компании
К недостаткам Grohe Rapid можно отнести:
- большое количество подделок. Отметим, что все элементы уникальной конструкции снабжены логотипами фирмы. На подделке, как правило, данный аспект упущен;
- необходимость приобретения унитаза отдельно;
- стоимость изделия, которая составляет 11 000 – 15 000 рублей (160-210 $).
По мнению специалистов, инсталляция Grohe является оптимальным соотношением стоимости и качества изделия.
Tece
Лидер по производству инсталляций – немецкая компания Tece. Достоинствами изделий компании, средняя стоимость которых составляет 14 000 рублей (200 $), являются:
- надежность системы. Благодаря большому опыту и тесному взаимодействию со специалистами компания выпускает долговечные инсталляции и дает на свою продукцию гарантию в 10 лет;
- быстрота технического обслуживания. Все элементы инсталляции взаимозаменяемы и быстро снимаются для проведения периодического обслуживания системы;
- бесшумное наполнение сливного бачка, которое происходят благодаря усовершенствованию системы.

Рамная конструкция от германской компании
В период эксплуатации никаких отрицательных качеств данного вида системы специалистами не обнаружено.
Cersanit
- комплектация системы. За указанную стоимость можно приобрести не только инсталляцию, но и сам унитаз, а также все крепежные элементы;
- долговечность использования.

Подвесной унитаз польского производителя в сборе
К негативным характеристикам можно отнести:
- наличие крепежных элементов малой длины (24 см), что не позволяет устанавливать конструкцию в некоторых помещениях;
- пластиковые переходники на раме конструкции, с которыми необходимо обращаться предельно аккуратно;
- проблемы с запасными частями в случае поломки.
Инсталляция оптимально подойдет для пользователей, желающих установить подвесной унитаз при минимальных затратах.
Любой из перечисленных производителей инсталляций гарантирует качество и надежность своего изделия как минимум на 5 лет постоянного использования.
Что особенного в инсталляции Geberit
Компания производит продукцию на 8 линиях, среди которых одна эксплуатируется полностью для систем инсталляции. Наибольший ассортимент инсталляций отнюдь не рекламный ход производителя. Это факт, свидетельствующий о стремлении Geberit отвечать любым потребностям клиентов.
Компания разрабатывает все новые и новые модели сантехники, которые позволяют:
- максимально экономно использовать пространство помещений;
- сокращать расходы на водопотребление;
- воплощать любые идеи дизайнеров.
Инсталляция становится все более популярным предметом сантехники и вытесняет из квартир и домов традиционные сливные баки унитаза. В туалетных комнатах практически всех современных бизнес-центров, автовокзалов и торговых центров устанавливается системная инсталляция.
Это указывает на надёжность конструкции. В противном случае в местах общественного пользования она бы не была столь востребованной. Geberit производит комплекты подвесных унитазов с инсталляцией Geberit, подходящие для размещения в любом месте помещения, в том числе под окном.
Это возможно с инсталляционными рамными установками высотой до 82 м. Производитель учитывает, что не всегда допустима установка инсталляции с креплением к капитальной стене. Вот почему Geberit выпустила линейку конструкций Delta.
Ее модели оснащаются усиленными нижними опорами. Подобная система может быть установлена в любом месте комнаты, даже может встраиваться в гипсокартонную обшивку. У инсталляций Geberit Delta нет дизайнерских излишеств, которые сделали бы продукцию дороже.
Вот почему серия может относиться к эконом-классу. Притом подобная экономия нисколько не влияет на качество выпускаемой Geberit сантехники. Хотя у продукции бренда швейцарское происхождение, она производится Geberit с учётом потребностей местных рынков.
Эта линейка сантехники дает возможность монтировать инсталляцию в стену с сантехническими шахтами, вблизи которой протянуты канализации водопровода или канализации.
Коллекция «Платтенбау» в России представлена в трёх модификациях: Delta; Sigma и Omega. Первый вариант без дорогостоящих излишеств доступен покупателю со средним уровнем доходов.
Рама из стали держит нагрузку до 400 кг и оснащается выдвигающимися опорами длиной 20 см. У 9-литрового бака двойной сливной механизм: первый для слива на 3−4 л и второй для слива на 7−9 л. Такая конструкция позволяет существенно экономить на водопотреблении.
Покрытая хромом белая или глянцевая кнопка двухсекционная: каждая кнопка соответствует своему типу слива. У модели инсталляции упрощен механизм устранения отказа бачка.
Добраться до неисправности очень просто – стоит лишь снять смывную кнопку для инсталляции Geberit и получить доступ к специальному окошечку.
Скрытая инсталляция для подвесного унитаза
Линейка продуктов Geberit Duofix предназначена для монтажа инсталляции в перегородках из гипсокартона и в случае установки подвесного унитаза. С таким сантехническим изделием намного проще убираться в ванной комнате – мыть пол ничто не мешает.
К тому же в данном варианте нет унитазной ножки, вокруг которой главным образом скапливается пыль. Систему скрытого слива дополняет огромный выбор монтажных модулей и клавиш для инсталляции Geberit.
Поэтому можно с легкостью оборудовать туалетную комнату для пользователей с ограниченными возможностями.
Крепёжные элементы дают возможность монтировать унитаз так, чтобы нагрузка распределялась равномерно на пол и стойки сбоку. Вот почему не стоит опасаться, что подвесной унитаз упадет – это исключено.
Инсталляций скрытой модификации вида Geberit Kombifix
Эта линейка продуктов ориентирована на монтаж в кирпичной кладке, а также перед ней. Элементы конструкции дают возможность крепить инсталляцию к полу или стене.
Инсталляции Geberit Plattenbau
Любая инсталляция для унитаза из этой коллекции по стоимости является отличным выбором для российских потребителей.
Это обусловлено как приемлемой стоимостью этих систем, так и конструктивными особенностями:
- эти инсталляции при больших объемах сливного бачка позволяют регулировать количество спускаемой воды, что сказывается на экономии;
- такие модели выпускаются без дополнительных функций и «наворотов», увеличивающих стоимость изделий, но на практике являющихся бесполезными;
- в случае поломки практически любую неисправность легко устранить, так как доступ к механизмам инсталляции осуществляется через отверстие для клавиши вызова, следовательно, для ремонта инсталляцию не нужно демонтировать.

Такие инсталляции предназначены только для монтажа на капитальную кирпичную или бетонную стену и непригодна для установки непосредственно на гипсокартон.
Поставляется изделие полностью в собранном виде, что позволяет сэкономить время и избежать возможных ошибок в процессе самостоятельной сборки.
Существует множество разновидностей и модификаций Geberit Plattenbau, и при выборе мы рекомендуем обращать внимание на инсталляции, оборудованные бачком, которые представляют единую цельную конструкцию с патрубком подачи воды. Такие бачки менее подвержены поломкам и практически полностью исключают риск протечек
Все модели серии Plattenbau отличаются малыми габаритами, если сравнивать с другими линейками. Это позволяет не только сэкономить место в санузле при монтаже инсталляции, но и спрятать между стеной и гипсокартонной перегородкой коммуникации и другие инженерные элементы, которые при инсталляции большего размера не уместились бы в получившейся нише.




































